在火法冶煉中,耐火材料使用壽命是一項重要的生產指標,嚴重影響著爐體作業率、生產成本。耐火材料的使用環境要求其能夠抵抗溫度的損害、熱應力的損壞和介質的腐蝕。因此,選擇合適的耐火磚,延長耐火磚壽命,對提高生產效率,降低生產成本起著至關重要的作用。
1、耐火磚的種類
目前,耐火材料常見的分類方式為化學成分分類,可分為硅石、鋁硅酸鹽、鎂質、白云石質和碳復合等耐火材料。
1.1 硅石耐火材料
硅石耐火材料是以SiO?為主要成分,SiO?質量分數不小于93%的耐火材料,可以為定形,也可以為不定形耐火材料。該耐火材料具有熱導率、荷重軟化點高,抗酸性渣侵蝕能力強等優點,但大的缺點是抗熱震穩定性低。因此,該耐火材料主要用作焦爐、玻璃熔窯、酸性煉鋼爐及其他熱工設備的結構材料。
1.2 鋁硅酸鹽耐火材料
鋁硅酸鹽耐火材料是以AI?O?和SiO?為主要成分的耐火材料。按耐火材料中的AI?O?含量不同可分為半硅質(質量分數15%~30%)、黏土質(質量分數30%~48%)和高鋁質(質量分數>48%)耐火材料。該耐火材料具有質量輕、熱穩定性、保溫性能好等優點,但其開始變形溫度為1400℃。因此,鋁硅酸鹽耐火材料在冶金行業一般用作保溫材料,不用于工作層。
1.3 鎂質耐火材料
鎂質耐火材料是以方鎂石為主晶相,MgO質量分數大于80%的耐火材料。受鎂質原料成分的影響,鎂質耐火材料主要組分為MgO、FeO、Fe?O?、AI?O?、SiO?、CaO、Cr?O?。MgO的熔點高,鎂質耐火材料的耐火度高,因此鎂質耐火材料具有良好的耐高溫性能。鎂質耐火材料包括鎂磚、鎂橄欖石質耐火材料、鎂鋁尖晶石質耐火材料、鎂鉻質耐火材料、白玉石質耐火材料。其中,鎂鉻質耐火材料是由鎂砂和鉻鐵礦制成的,并且以鎂砂為主要組分。與傳統鎂磚相比,鎂鉻質耐火材料熱穩定性更強,廣泛運用于有色冶煉爐。但因六價鉻對環境和人體健康有嚴重危害,特別是會對水造成嚴重污染,因此在生產和制作過程中,需嚴格控制堿性介質和氧分壓。
1.4 白云石質耐火材料
白云石質耐火材料是以白云石為主要原料,MgO和CaO為主要成分的堿性耐火材料,其中CaO的質量分數為40%~60%,氧化鎂質量分數為30%~40%。白云石質耐火材料的耐火溫度高,0.2MPa荷重軟化開始溫度野比較高,由此可見,其具有較好高溫穩定性。白云石質耐火材料屬于強堿性耐火材料,對堿性渣具有較強的抗渣性,但對酸性渣的抗渣性較差。因此,該耐火材料主要用于平爐爐墻和爐底、回轉窯燒成帶等。
1.5 碳復合耐火材料
碳復合耐火材料也稱為含碳耐火材料,是以兩種或兩種以上不同性質的耐火氧化物(MgO、CaO、Al?O?、ZrO?等)和碳素材料及非氧化物材料為原料,用碳素材料作為結合劑而制成的一種多相復合耐火材料。碳復合耐火材料的耐火度高、導熱性和導電性均好,荷重變形溫度和高溫強度優異,抗渣性和抗熱震性都比其他耐火材料好,但這一類制品都有易氧化的缺點。因此,該耐火材料主要用于冶煉不銹鋼、純凈鋼及低硫鋼等鋼種領域。
2、側吹爐耐火材料的選擇
2.1 側吹爐簡介
側吹爐是生產粗銅的冶煉設備,富氧空氣通過設置在渣線區的1次風口鼓入爐內,在高溫作用下進行反應,粗銅沉入熔池下部,排放到電爐,爐渣則集聚于熔池上部,通過溢流排放到電爐,反應煙氣從煙道排放到鍋爐工藝氣
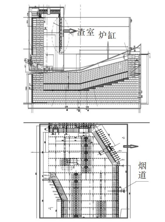
側吹爐爐體結構采用固定式長方形爐型,由銅水套、耐火材料和鋼結構組合而成。爐體自下而上分為爐缸、爐身、爐頂和煙道4個部分。用于存儲反應產生的粗銅和渣的爐缸由耐火磚砌筑而成,爐缸端部設置渣室進行銅渣分離。爐身又分為反應區和煙氣區,反應區由銅水套和1次風口組成,煙氣區由便于掛渣保護的開槽銅水套和2次風口組成。反應煙氣由水套組成的排煙口排出,進入煙道。煙道空間尺寸根據煙氣流速進行核算,保證煙氣在煙道內停留時間2s以上。側吹爐主要的反應區屬于銅水套保護位置,耐火材料使用位置主要是在爐缸、渣室和煙道,具體區域詳見圖1。

圖1 爐缸、渣室和煙道區域
2.2 側吹爐耐火材料成分的選擇
由側吹爐工作原理可知,側吹爐爐缸、渣室會受到熔體的侵蝕和沖刷,煙道會受少量熔渣的噴溉侵蝕和含塵煙氣的沖刷。在正常爐況下,這3個區域的溫度為1100~1300℃;但在爐況不穩定情況下,這3個區域的溫度可達1400℃以上。在實際生產過程中,側吹爐需供入富氧1次風和2次風,并在局部形成強氧化氣氛,因此側吹爐應選擇不易被氧化的耐火磚。熔渣的主要成分為FeO、SiO?、CaO、AI?O?,高鋁質耐火材料和硅石耐火材料會參與造渣,不適合側吹爐使用。因此,側吹爐耐火材料需要具備耐高溫、熱穩定性強、荷重變形溫度高、耐壓強度高、抗氧化性、不參與造渣的特點。結合耐火材料的特性,側吹爐應選擇鎂質耐火材料。鎂質耐火材料中Cr?O?的含量増加可以提高材料的抗渣侵蝕性,因此側吹爐爐缸、渣室和煙道的耐火磚選擇Cr?O?含量較高的鎂鉻質耐火材料。
2.3 側吹爐耐火材料結合形式的選擇
根據鎂鉻質耐火材料的結合形式的不同,包括直接結合、半再結合、電熔再結合等鎂鉻質耐火材料。其中,直接結合鎂鉻質耐火材料是以高純燒結鎂砂和鉻鐵礦為原料,將電熔鎂砂與鉻礦直接燒結;半再結合鎂鉻質耐火材料是以電熔鎂鉻砂作屬粒,加入部分鉻礦和鎂砂或燒結合成鎂鉻料作細粉,高溫燒結而成;電熔再結合鎂鉻質耐火材料是將鉻礦與電熔鎂砂在電爐中電熔,制得電熔鎂鉻砂,再高溫燒結而成。3類鎂鉻質耐火磚材料特性對比,見表1。

表1 3類鎂鉻質耐火材料特性對比
由表1可知,電熔再結合鎂鉻質耐火材料的性能好,半再結合鎂鉻質耐火材料的性能次之。結合側吹爐內爐缸、渣室和煙道區域對耐火材料損耗情況,爐缸、渣室、煙道區域分別采用半再結合、電熔再結合、直接結合鎂鉻質耐火材料。
2.4 側吹爐耐火材料化學成分和物理性能指標
上述3類鎂鉻質耐火材料化學成分和物理性能指標,見表2。

表2 3類鎂鉻質耐火材料化學成分和物理性能指標
3、結 語
耐火材料使用壽命直接影響著生產作業率和生產成本,須針對不同區域的工作環境,選擇合適的耐火材料種類和結合方式,這是提高耐火材料使用壽命的有效手段。